AS Immobilien | Fritz-Wunderlich-Straße 20 | 66869 Kusel (06381) 99 53 02 info@as-immobilie.de

Vielversprechende Gelegenheit mit Stil

Die außergewöhnliche Liegenschaft sticht insbesondere durch die Sandsteinfassade auf der Straßenseite heraus. Die im 19. Jahrhundert  in massiver Bauweise auf einem 610 m² großen Grundstück errichtete und 1995 ausgebaute Immobilie darf als Rarität auf dem Kuseler Immobilienmarkt bezeichnet werden.Das freistehende Mehrfamilienwohnhaus verfügt über 3 abgeschlossene Wohneinheiten in gepflegtem Zustand,

Im Dachgeschoss befindet sich eine Maisonette-Wohnung mit Panorama-Fensterfront, welche über eine Wohnfläche von rund 108 m² verfügt und die im Wesentlichen auf den einen offenen Wohn- und Essbereich, 1 Zimmer, Küche und Badezimmer sowie 1 Studiozimmer verteilt ist. Nach dem Auszug der Mieter wird diese zum Zwecke besserer Besichtigungsmöglichkeiten vorerst nicht vermietet.

Die Wohnungen im Obergeschoss und Erdgeschoss umfassen jeweils 3 Zimmer, Küche und Badezimmer mit rund 89 m² sowie 78 m² Wohnfläche und sind vermietet. Alle 3 Wohnungen sind mit einem Balkon ausgestattet.

Besonders erwähnenswert im Außenbereich ist die zur Straßenseite hin mit einer Bruchsteinmauer mit aufgesetzten Zaunelementen eingefriedete und mit einem Schiebetor versehene, gepflasterte Hoffläche. Hier stehen 6 PKW-Stellplätze, ein Freisitz, ein massives Nebengebäude und eine Grünanlage zur Verfügung.

Erfahren Sie nachstehend Details zu Aufteilung und Ausstattung, weitere Informationen erhalten Sie auf Anfrage oder bei einer gemeinsamen Besichtigung, die nach Absprache mit den Mietern erfolgen kann.

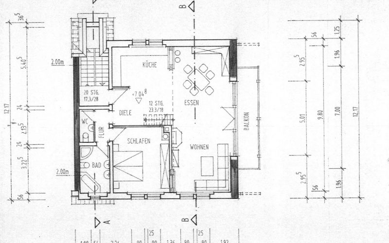
Aufteilung:

Erdgeschoss 78,95 m² Wfl.:
Wohnzimmer mit Zugang zum Balkon
Schlafzimmer
Badezimmer
Gäste- oder Arbeitszimmer
Küche
Flur

Obergeschoss 89,54 m² Wfl.:
Wohnzimmer mit Zugang zum Balkon
Schlafzimmer
Kinderzimmer
Badezimmer
Küche
Flur

Dachgeschoss 108,87 m² Wfl.:
Wohn- und Essbereich mit Zugang zum Balkon
Küche
Schlafzimmer
Badezimmer
Gästetoilette
Diele mit Treppe zum
Studiozimmer

Keller:
3 Kellerräume
Hausanschlussraum
Flur

Außenbereich:
eingefriedete, gepflasterte Hoffläche mit
6 PKW-Stellplätzen
Freisitz
Grün- und Gartenanlage und
massivem Nebengebäude

Ausstattung:

Bauweise: massiv, Sandsteinfassade zur Straße
Giebelseite verputzt und gestrichen
Dach: Satteldach (Kaltdach)
Eindeckung: Ziegel

Fenster & Türen:
doppelt verglaste Kunststofffenster (1996), weiß
Oberlichter im DG
Rollladen in EG und OG
Holztüren

Fußboden:
Im EG Fliesen, PVC
Im OG Fliesen

Im DG Fliesen, parkett

Wände und Decken:
Putz, Tapeten, tlw. sichtbares Gebälk im DG

Heizung:
Erdgas-Thermen/Heizungen, Baujahr 1995, 2021
Rippenheizkörper

Energieeffizienz:
3 Energiebedarfsausweise, gültig bis 26.02.2034
EG: Endenergiebedarf: 197 kWh /m2*a), Klasse F
OG: Endenergiebedarf: 131,9  kWh /m2*a), Klasse E
DG: Endenergiebedarf: 126,5  kWh /m2*a), Klasse D
Versorgung: Erdgas
Baujahr Gebäude: 1900/1995

Sanitärausstattung:
Tageslicht-Badezimmer im EG mit
Badewanne, Dusche mit Kabine, Toilette, Waschbecken
Waschmaschinenanschluss, raumhoch gefliest

Tageslicht-Badezimmer im OG mit:
Badewanne, Dusche mit Kabine, 2 Einzelwaschbecken, Toilette
Waschmaschinenanschluss, raumhoch gefliest

Tageslicht-Badezimmer im DG mit:

Eckbadewanne mit Whirlpool, Dusche mit Kabine, 2 Einzelwaschbecken, Toilette
raumhoch gefliest
Gäste-Toilette im DG mit:
Toilette, Waschbecken, Waschmaschinenanschluss

Küche:
3 Küchen mit Einbauküche und Elektrogeräten

Diverses / Wissenswertes:
SAT-TV sowie Kabelanschluss


Lage:

Die Kreisstadt Kusel liegt im Westen der sonnigen Pfalz, nicht weit vom Saarland und mitten im reizvollen Westricher Berg- und Hügelland. Sie verfügt mit dem Anschluss an die Bundesautobahn A6 (Europastraße 12) Mannheim – Saarbrücken, Bundesautobahn A 62 Karlsruhe – Pirmasens – Landstuhl – Trier, der Bundesstraße 420 mit Anbindung an die Bundesstraßen 423 und 270 und der Bahnstrecke Kusel – Landstuhl – Kaiserslautern – Saarbrücken über die Anbindung an das Deutsche Bahn AG-Fernverkehrsnetz über ein gut funktionierendes Straßen- und Schienennetz.


Hinweise:

GELDWÄSCHE: Als Immobilienmaklerunternehmen ist die FIRMA AS-Immobilien nach § § 1, 2 Abs. 1 Nr. 10, 4 Abs. 3 Geldwäschegesetz (GwG) dazu verpflichtet, vor Begründung einer Geschäftsbeziehung die Identität des Vertragspartners festzustellen und zu überprüfen. Hierzu ist es erforderlich, dass wir die relevanten Daten Ihres Personalausweises festhalten (beispielsweise mittels einer Kopie). Das Geldwäschegesetz (GwG) sieht vor, dass der Makler die Kopien bzw. Unterlagen fünf Jahre aufbewahren muss.

PROVISIONSHINWEIS: Mit der Anfrage bei und durch Inanspruchnahme der Dienstleistung der Firma AS-IMMOBILIEN, wird ein Maklervertrag geschlossen. Sofern es durch die Tätigkeit der Firma AS-IMMOBILIEN zu einem wirksamen Hauptvertrag mit der Eigentümerseite kommt, hat der Interessent bei Abschluss eines KAUFVERTRAGS eine Maklercourtage in Höhe von 3,57% des Kaufpreises mindestens jedoch 3.927,00 Euro inkl. MwSt. an die Firma AS-IMMOBILIEN gegen Rechnung zu zahlen.

HAFTUNG: Wir weisen darauf hin, dass die von uns weitergegebenen Objektinformationen, Unterlagen, Pläne etc. vom Verkäufer bzw. Vermieter stammen. Eine Haftung für die Richtigkeit oder Vollständigkeit der Angaben übernehmen wir daher nicht. Es obliegt daher unseren Kunden, die darin enthaltenen Objektinformationen und Angaben auf ihre Richtigkeit hin zu überprüfen. Alle Immobilienangebote sind freibleibend und vorbehaltlich Irrtümer, Zwischenverkauf- und Vermietung oder sonstiger Zwischenverwertung.

WIDERRUFSRECHT:

Sie haben das Recht, binnen vierzehn Tagen ohne Angabe von Gründen diesen Vertrag zu widerrufen. Die Widerrufsfrist beträgt vierzehn Tage ab dem Tag des Vertragsabschlusses. Um Ihr Widerrufsrecht auszuüben, müssen Sie uns (AS Immobilien Andreas Schnellting, Fritz-Wunderlich-Straße 20, 66869 Kusel, Tel. (06381) 99 53 02, Fax (06381) 99 53 06, oder E-Mail mittels einer eindeutigen Erklärung (z.B. ein mit der Post versandter Brief, Telefax oder E-Mail) über Ihren Entschluss, den Vertrag zu widerrufen, informieren.  Zur Wahrung der Widerrufsfrist reicht es aus, dass Sie die Mitteilung über die Ausübung des Widerrufsrechts vor Ablauf der Widerrufsfrist absenden.


Objekt ID: 202403111
Verfügbar ab: sofort
Kaufpreis: 475000 EUR
Kaufpreis pro qm: 1714 € EUR
Jährl. Mieteinnahmen (Soll): 26522 EUR
Provision für Käufer: 3,57 % inkl. Mwst.
Provision für Verkäufer: 3,57 % inkl. MwSt.
Lage: Kusel
Dachform: Satteldach
Bauweise: massiv
Befeuerung: Erdgas
Wohneinheiten: 3
Zimmer: 9
Schlafzimmer: 6
Badezimmer: 3
Kellerräume: 3
Wohnfläche: 277  m²
Grundstücksfläche: 610  m²
Etagen: 3
Baujahr: 1900/1995
Objektzustand: gepflegt
x-fache Miete Soll:17,91
Stellplatz/Carport Garten Balkon Einbauküche Gäste-WC Keller
Heizungsart: Thermen
Befeuerungsart: Erdgas
Baujahr lt. Energieausweis: 1995
Energieeffizienzklasse: F, E, D
Wert des Endenergiebedarfs: 191, 197, 126
Art des Energieausweises: Bedarfsausweis
Gültigkeit des Energieausweises: 26.02.2034