Gewerberäume für Café und Mehr im Herzen der Kreisstadt Kusel
Für Existenzgründer, die durchstarten möchten ebenso geeignet wie für Unternehmer, die erweitern oder sich neu orientieren möchten! Nicht nur durch die sehr gute Lage bieten sich in diesen, vormals als traditionsreiches Café genutzten Räumen, interessante und vielseitige Nutzungsmöglichkeiten:
In freundlicher Atmosphäre inmitten der Fußgängezone wäre ein Cafe für alle Altersklassen, in dem auch kleine Snacks und Cocktails gereicht werden, ebenso denkbar wie ein Tanzcafé oder eine Vinothek, wo man sich mit Bekannten treffen und in gemütlicher Runde den Tag ausklingen lassen könnte.
Darüber hinaus bietet diese Gewerbeeinheit die Möglichkeit, hier ein Büro zu eröffnen oder einen Einzelhandel zu betreiben.
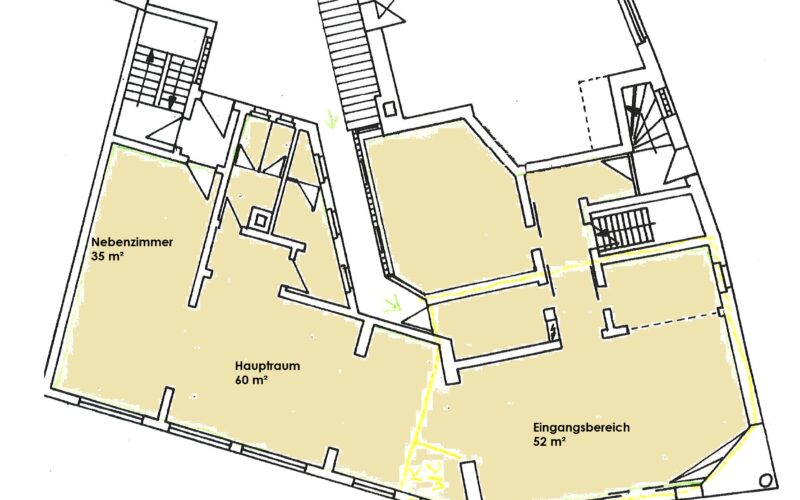
Die vielseitig nutzbare, barrierefrei zugehbare Gewerbefläche untergliedert sich im Wesentlichen in einen offenen und großgügigen Eingangsbereich, der durch großzügige Türelemente ebenerdig zugänglich ist, den Gastraum und einen durch Fensterelemente abgetrennten Nebenraum. Nachstehend erfahren Sie Details zur Aufteilung und Ausstattung:
Aufteilung:
Laden und Café mit 223 m²
Eingangsbereich mit großzügigen Türelementen
Hauptraum mit 50 Sitzplätzen (60 m²)
Küche
abgetrennter Nebenraum mit
30 Plätzen (35 m²)
Nutzräume:
Herren- und Damentoilette
Lagerraum für Küche
Ausstattung:
der Fußboden im Eingangsbereich ist mit Granit und im Haupt- sowie Nebenraum mit Teppich belegt, Wände und Decken sind tapeziert und mit Einbaustrahlern versehen
Die Sanitäranlagen wurden modernisiert.
Nebenkosten:
Details zu den Nebenkosten erhalten Sie auf Anfrage
Vereinbaren Sie einen Besichtigungstermin oder rufen Sie uns an, um weitere Informationen zu erhalten!
Lage
Die Kreisstadt Kusel liegt im Westen der sonnigen Pfalz, nicht weit vom Saarland und mitten im reizvollen Westricher Berg- und Hügelland. Sie verfügt mit dem Anschluss an die Bundesautobahn A6 (Europastraße 12) Mannheim – Saarbrücken, Bundesautobahn A 62 Karlsruhe – Pirmasens – Landstuhl – Trier, der Bundesstraße 420 mit Anbindung an die Bundesstraßen 423 und 270 und der Bahnstrecke Kusel – Landstuhl – Kaiserslautern – Saarbrücken über die Anbindung an das Deutsche Bahn AG-Fernverkehrsnetz über ein gut funktionierendes Straßen- und Schienennetz.
| Objekt ID: | 202203281 |
| Verfügbar ab: | sofort |
| Miete: | 1350 EUR |
| Nebenkosten: | auf Anfrage EUR |
| Kaution: | 1 Monatesnettokaltmiete |
| Provision für Mieter: | provisionsfrei |
| Lage: | Kusel |
| Dachform: | Satteldach |
| Bauweise: | massiv |
| Befeuerung: | Erdgas |
| Gewerbeeinheiten: | 1 |
| Nutzfläche: | 223 m² |
| Etagen: | 1 |
| Baujahr: | 1805 |
| Gastraumfläche: | 95 m² |
| Eingangsbereich: | 52 m² |
| Nebenfläche: | 76 m² |
| Heizungsart: | Zentral |
| Befeuerungsart: | Erdgas |
| Baujahr lt. Energieausweis: | 1805 |
| Wert des Endenergieverbrauchs: | 162,6 |
| Endenergiebedarf (Strom): | 72,7 |
| Art des Energieausweises: | Verbrauchsausweis |
| Gültigkeit des Energieausweises: | 10.11.2024 |























